Architecture d'Intérieur

Imaginez aujourd'hui, construisez demain

Grâce à nos rendus 3D réalistes et nos plans 2D techniques, visualisez votre futur intérieur avant le premier coup de marteau. BatiPro vous accompagne de la conception à la réalisation, à Colombes et dans les Hauts-de-Seine (92).

Entrée moderne réalisée en rendu 3D par BatiPro Architecture
Pourquoi un architecte d'intérieur ?

Votre meilleur allié pour concrétiser vos projets

L'architecte d'intérieur est le professionnel qui transforme vos idées en espaces concrets. Il vous accompagne de la conception à la réalisation grâce à des rendus 3D et des plans 2D qui vous permettent de vous projeter dans votre futur intérieur.

Son expertise garantit que chaque espace est optimisé : circulations fluides, emplacements cohérents des pièces de vie, volumes exploités au maximum. Avec BatiPro, vous ne construisez pas à l'aveugle — vous construisez sur une vision claire et validée.

visibility

Projection réaliste

Visitez votre futur intérieur avant même le premier coup de marteau grâce à des rendus 3D photoréalistes.

shield

Zéro mauvaise surprise

Chaque détail est validé en amont : matériaux, couleurs, volumes. Vous savez exactement ce que vous obtiendrez.

architecture

Espaces optimisés

Nos architectes repensent vos circulations, vos rangements et l'ergonomie de chaque pièce pour gagner en confort.

palette

Style sur mesure

Aménagement standard ou personnalisé : nous adaptons chaque projet à votre mode de vie et à vos goûts.

Rendus 3D Réalistes

Visitez votre futur intérieur avant qu'il n'existe

Nos rendus 3D photoréalistes vous immergent dans votre projet : matières, couleurs, lumières naturelles et artificielles. Plus qu'un simple plan, c'est une véritable visite virtuelle.

Rendu 3D réaliste d'une salle de bain moderne — BatiPro Architecture
Rendu 3D d'un salon contemporain avec jeux de lumière
Rendu 3D d'une cuisine aménagée sur mesure
Rendu 3D d'un espace de vie lumineux avec végétation
Rendu 3D — axes de travail et aménagement intérieur
Rendu 3D sombre — ambiance nocturne et éclairage artificiel
check_circle

Rendus réalistes et texturés

Matières, couleurs et volumes fidèles à la réalité.

check_circle

Aménagement personnalisé

Standard ou sur mesure, adapté à votre style de vie.

check_circle

Vidéos immersives

Animations 3D pour une visite virtuelle de votre projet.

check_circle

Jeux de lumière

Éclairage naturel et artificiel pour visualiser vos espaces à différents moments de la journée.

check_circle

Mise en situation

Décors et ambiances qui vous permettent de vivre votre projet.

check_circle

Corrections illimitées

Ajustements jusqu'à satisfaction totale avant le lancement des travaux.

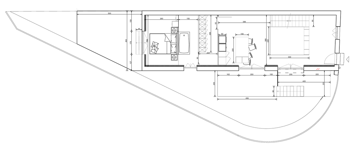
Plan 2D d'architecture — BatiPro Rénovations Colombes
Plans 2D Techniques

La base solide de votre projet

Les plans 2D sont la colonne vertébrale de toute conception architecturale. Ils structurent vos idées, définissent les volumes et organisent chaque mètre carré avec précision.

Avant de construire, vous validez la disposition des pièces, anticipez les circulations et vérifiez chaque détail. Ces plans servent également de base de communication avec tous les artisans et partenaires du chantier.

  • check_circle Plans précis avec cotes et proportions fidèles
  • check_circle Optimisation des circulations et des surfaces
  • check_circle Indispensable pour communiquer avec les artisans
  • check_circle Du plan global aux détails du mobilier sur mesure
Notre Méthode

De l'idée à la réalisation

Un accompagnement complet pour que votre projet prenne vie exactement comme vous l'imaginez.

chat
01

Échange & Brief

Nous discutons ensemble de vos envies, vos contraintes et votre budget pour cadrer le projet.

draw
02

Plans 2D & Conception

Nos architectes dessinent les plans techniques avec cotes précises et optimisation des espaces.

view_in_ar
03

Rendus 3D réalistes

Vous recevez des visuels photoréalistes et des vidéos immersives pour valider chaque choix.

construction
04

Réalisation des travaux

Nos équipes exécutent le projet conformément aux plans validés, avec un suivi rigoureux.

Votre projet mérite les meilleures mains

Prenez rendez-vous pour une consultation gratuite. Nos architectes d'intérieur étudient votre projet et vous présentent les premières pistes de conception.